We provide technology-driven as-built documentation services, including model updates, mark-up incorporation, facility handover, and BIM-linked records.
As projects progress through the construction lifecycle, large AEC firms face constant pressure to keep as-built documentation accurate and aligned with site conditions. The challenge grows even larger in multi-disciplinary projects with global stakeholders, tight schedules, and limited resources.
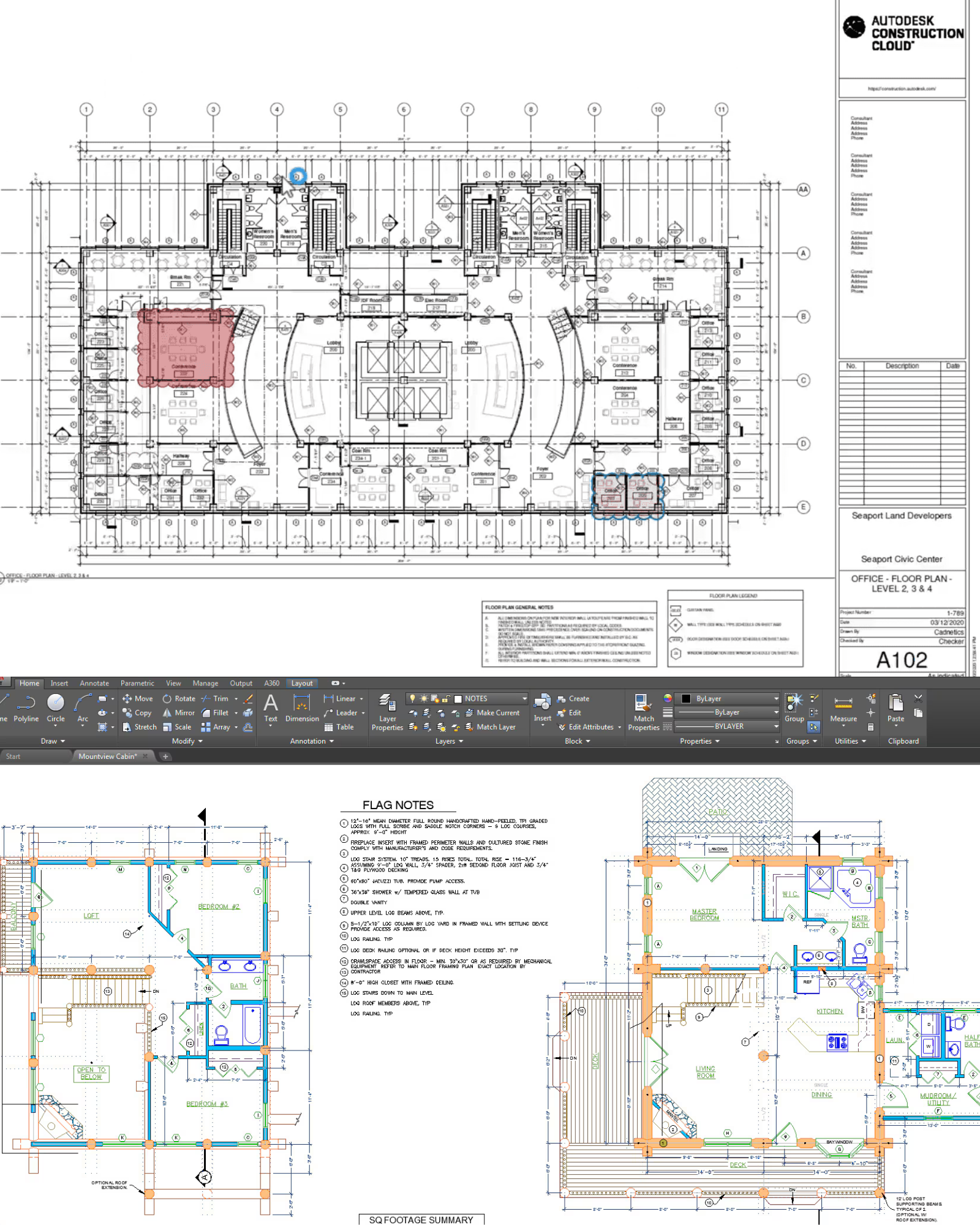
Lead consultants and contractors often struggle to capture and integrate redlines or construction markups into project models. Limited bandwidth and rising costs of skilled BIM experts make this task harder. As a result, teams experience data inconsistencies, handover delays, and costly closeout issues.
Another major challenge is the lack of centralized systems for recording field information—photos, notes, and markups. Without a connected, model-linked format, facilities teams and trade partners inherit scattered records. Consequently, this affects operational readiness and long-term efficiency.
Teams also need to comply with digital delivery standards such as ISO 19650 and meet client-specific requirements. These obligations create extra pressure on already stretched resources. Achieving accurate, traceable, and audit-ready as built drawings at scale requires both advanced technology and skilled execution.
DGTRA solves these challenges with a technology-driven and people-supported strategy. We digitize redlines, integrate markups, link visuals, and streamline record deliverables. Moreover, our approach ensures compliance, saves internal bandwidth, and delivers accurate as-built documentation for smooth facility handovers.
Our Capabilities in As-Built BIM Delivery
Seamlessly integrate on-site redline changes into updated BIM models with high precision.
Digitize and incorporate field mark-ups into as-built documentation for greater traceability.
Deliver fully coordinated, compliant, and client-ready record drawings aligned with latest site conditions.
Embed annotated images, field notes, and metadata into model elements for improved facility use.
Provide structured digital handover sets combining models, documents, visuals, and asset data in one place.
Our professionals bring expertise in leading digital tools. Tools are procured per project needs, ensuring agile and cost-effective delivery.
DGTRA combines deep domain knowledge with strong process orientation to deliver As-Built BIM services that meet international standards. We are ISO 19650 certified, ensuring information management excellence across projects.
Our teams operate from secure, high-performance delivery centers in India and serve AEC clients globally. Whether you need model updates, coordinated markups, or complete facility documentation, we provide scalable staffing and technological flexibility to support your goals.
By partnering with DGTRA, you gain a dependable digital extension of your internal team—one that’s ready to adapt, integrate, and deliver with precision.
Case Study / Blogs /Articles
Digitally transform your closeout with BIM-linked, scalable support.
It refers to the digital representation of actual site conditions post-construction, reflecting all modifications.
Yes, we digitize and incorporate these inputs into accurate BIM models.
Absolutely. We tailor documentation to match your standards and naming conventions.
We are ISO 19650 certified and follow stringent data security protocols.
Yes, we link visuals, tags, and notes directly to model elements.
DGTRA acts as a System Integration and Consulting Partner to several large Real Estate, Construction, Infrastructure and Manufacturing companies in India, US, UK and Australia. Our vision is to get established as a change agent, a catalyst that triggers the process of Digital transformation within an organization enhancing overall project and Business efficiency.
DGTRA © 2025 All Right Reserved .
Our team is here to help you!
Struggling with Tender Deadlines?
See how our manual Quantity Take-off (QTO) helped a contractor deliver accurate BOQs — ahead of schedule.
This free case study reveals how professional quantity take-off improved cost reliability, prevented overruns, and enabled confident bidding.
You’ll Learn:
✔ Approach & Workflow
✔ Accuracy Results
✔ Project Outcome
✔ Quantity Take-off (QTO) Checklist
We use cookies to improve your experience on our site. By using our site, you consent to cookies.
Websites store cookies to enhance functionality and personalise your experience. You can manage your preferences, but blocking some cookies may impact site performance and services.
Essential cookies enable basic functions and are necessary for the proper function of the website.
These cookies are needed for adding comments on this website.
Google Tag Manager simplifies the management of marketing tags on your website without code changes.
Statistics cookies collect information anonymously. This information helps us understand how visitors use our website.
Google Analytics is a powerful tool that tracks and analyzes website traffic for informed marketing decisions.
Service URL: policies.google.com (opens in a new window)
You can find more information in our Cookie Policy and Cookie Policy.
Automated page speed optimizations for fast site performance